2024幸运飞飞艇168官网现场直播

产品分类

联系方式

地址:江苏金湖县84大道

服务热线:0517-86905928

传真:0517-86905928

手机:15358661929

邮箱:jhjpyb@foxmail.com

联系人:徐经理

液位计

当前位置:首页>产品中心>液位变送器系列>液位计
UHC518C带远传磁翻板液位计
[list:title]

UHC518C带远传磁翻板液位计

产品优势:
合作客户:
        JP-UHC518系列带远传磁翻板液位计根据浮力原理和磁性耦合作用原理工作的。当被测容器中的液位升降时,液位计主导管中的浮子也随之升降,浮子内的磁钢通过磁耦合传递到现场指示器,驱动红白翻柱转180°,当液位上升时,翻柱由白色转为红色,当液位下降时翻柱由红色转为白色,指示器的红、白界位处为容器内介质液位的实际高度,从而实现液位的指示。带远传磁翻板液位计配远传变送器、报警(控制)开关,将现场数据传送至二次显示表或DCS系统。

        磁翻板液位计适合容器内液体的液位、界位的测量,指示新颖,读数直观、醒目,观察指示器的方向可根据用户需要改变角度。测量范围大,不受储槽高度限制,指示机构与被测介质隔离,因而密封性好,可靠性高,结构简单,安装方便,维护费用低。

一、技术参数:
测量范围:150~8000mm
(对中心距超过5000mm的或运输条件不允许超过长度的液位计可采用分段制造)
工作压力:2.5MPa;4.0MPa;6.3MPa
工作温度: -20~100℃;-20~200℃;0~400℃
精确度:±10mm
介质密度: 0.5~2.0g/cm3
介质密度差: ≥150kg/m3(测量界位)
环境振动:频率≤25Hz 振幅≤0.5mm
跟随速度: ≤0.08m/s
介质粘度: ≤0.4Pa.s,对于粘度大的介质或测量温度低时易结晶的介质,
可选用加热夹套型液位计
过程连接:旁路侧面安装法兰:DN25,PN1.0或PN1.6、PN2.5
法兰标准:HG20592~20635-97其它法兰标准请用户注明。
材质:旁路管:1Cr18Ni9Ti;304;316L

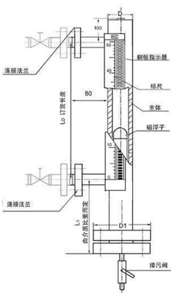
二、带远传磁翻板液位计尺寸图与安装示意图:
 
   

三、磁浮子翻板液位计选型表:
JP-UHC 磁浮子翻板式液位计
代 号 显示方式
517 就地翻板显示
518 就地翻板显示+4~20mA远传
  代号 安装方式
侧装式
D 顶装式
  代号 液位计类型
基型
W 保温型
J 防腐型
S 防霜型
Z 保温防腐型
Y 顶装防腐型
  代号 报警控制
0 无报警
1 带上限报警
2 带下限报警
3 带上下限报警
  代号 浮子材质 代号 本体材质
P 不锈钢 P 不锈钢
L 防锈铝 L 防锈铝
T T
S PVC塑料 S PVC塑料
F 氟塑包裹 F 氟塑管
    PF 内衬四氟
    PP 内衬丙烯
    PE 内衬乙烯
  代 号 待标明的数据
B1 标注法兰标准、通径、压力等级
B2 标注实际操作温度
B3 标注实际操作压力
B4 标注测量介质的密度
B5 标注订货长度,或提供法兰间距
             
浮子:钛

2024幸运飞飞艇168官网现场直播